projekty
m a t ě j š e b e k a r c h i t e k t i
info

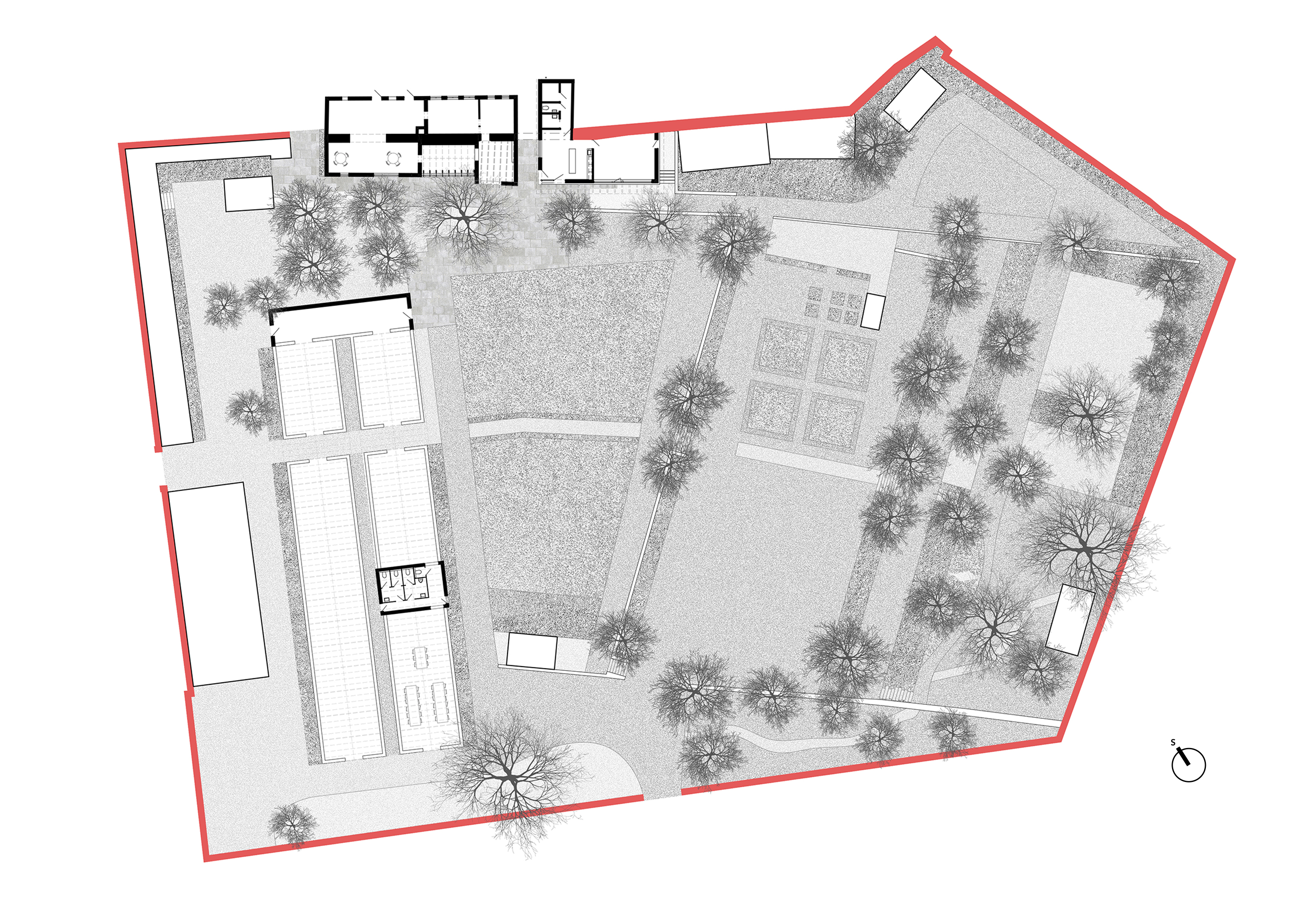
21–02 krafferova zahrada

architektura: Matěj Šebek / zahrada: Ateliér Za Mák / foto: Radek Úlehla / návrh: 2021, realizace: 2022-2025 / Jindřichův Hradec

Dvě stě let let stará zahrada uprostřed města. Nízká hmota ateliéru se přimyká k historické (možná barokní?) ohradní kamenné zdi. Minimální zázemí, květinářství a ateliér krajinářské architektury. Spousta svépomocné práce a chuť hledat méně standardní stavební cesty.