projekty
m a t ě j š e b e k a r c h i t e k t i
info

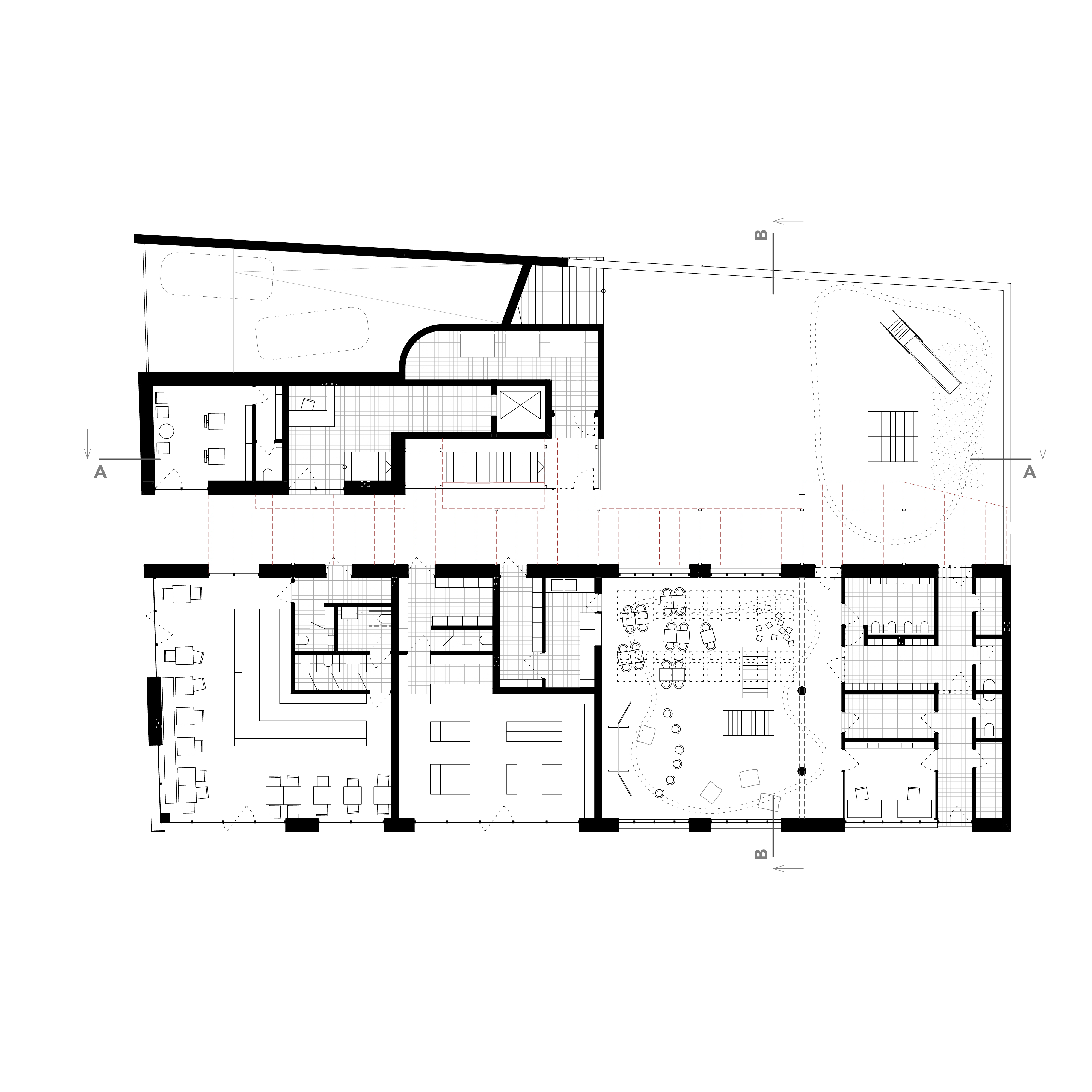
22–08 městský dům za papírnou

autoři: Matěj Šebek, Rozálie Domoráková / soutěžní návrh - 3.cena: 2022 / Praha 7

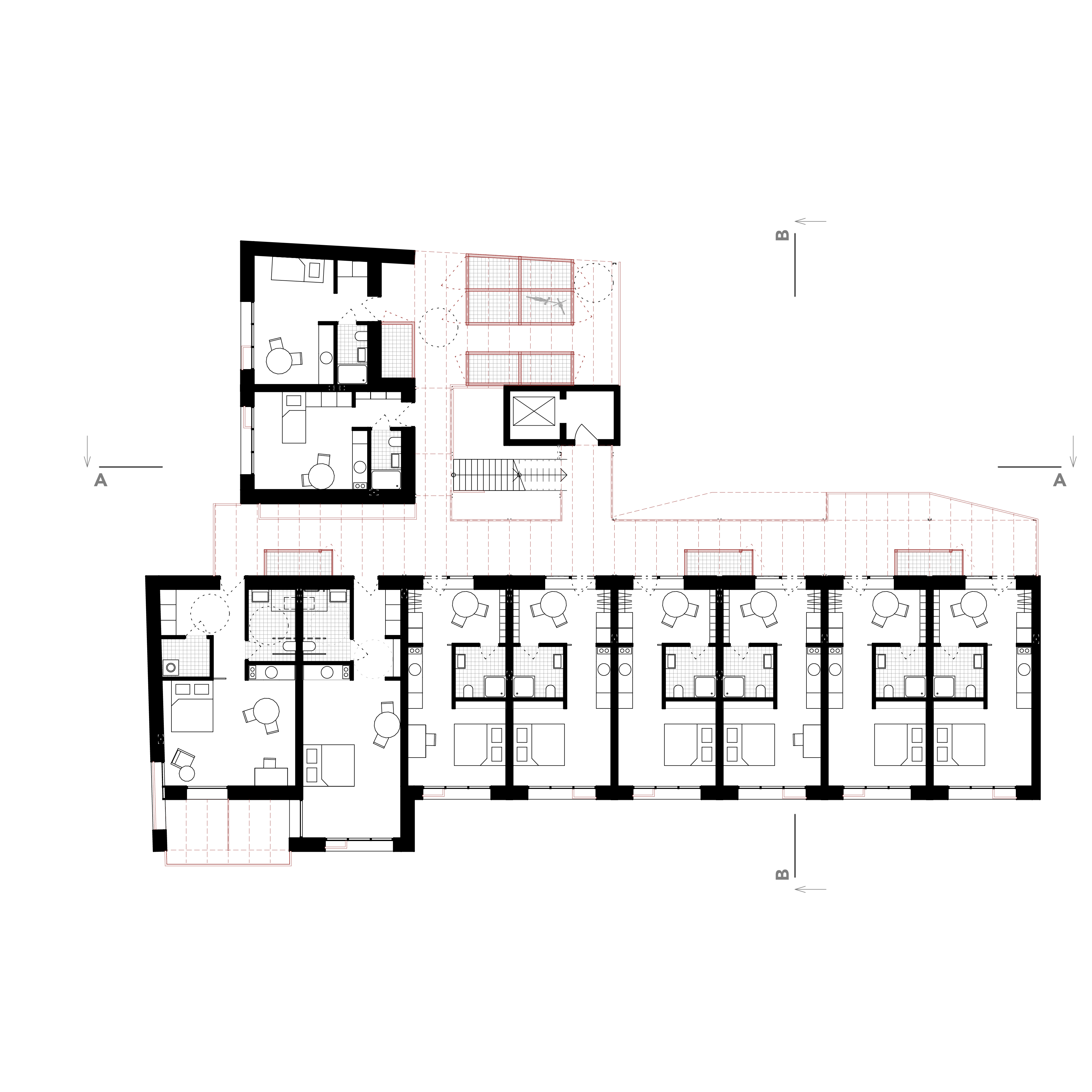
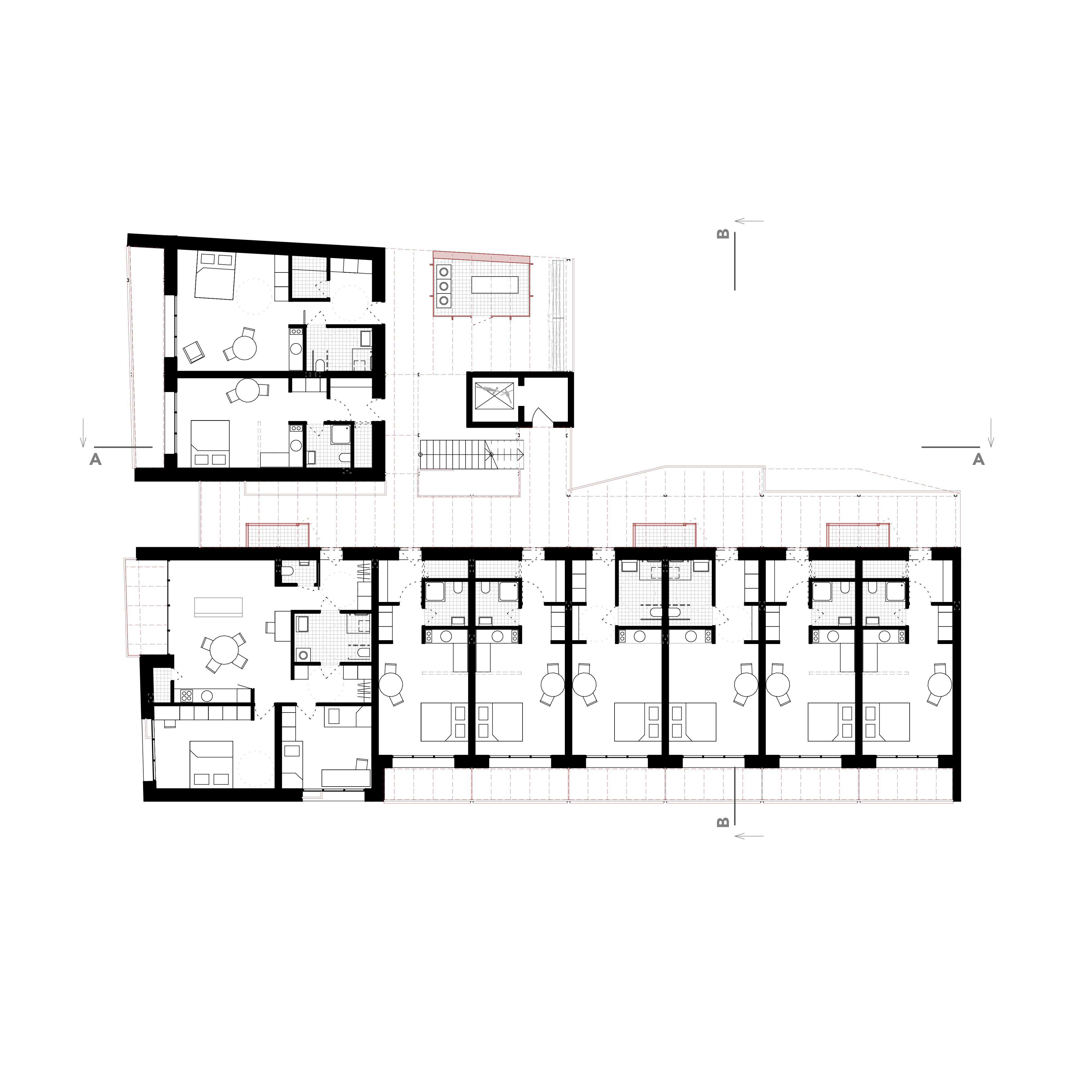
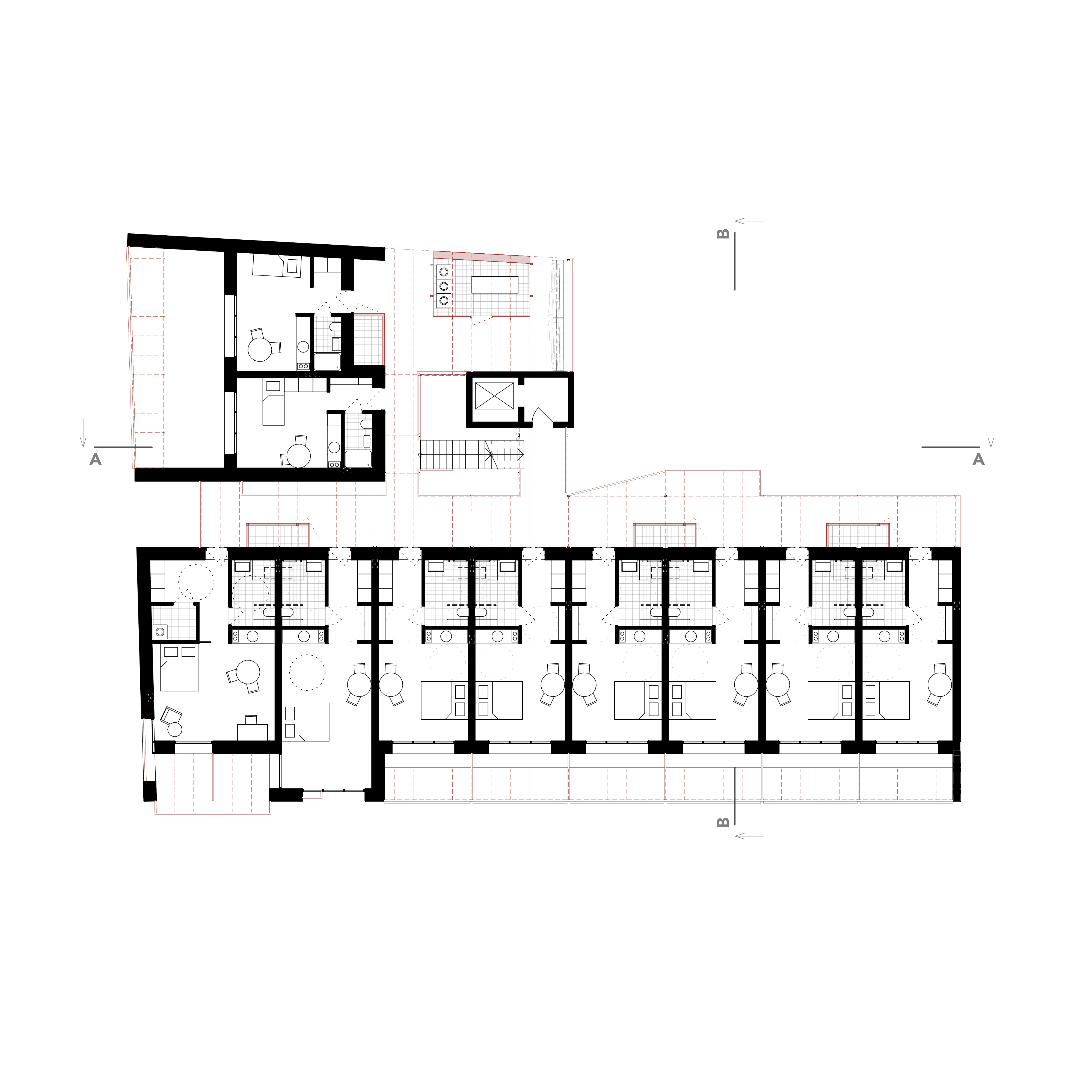
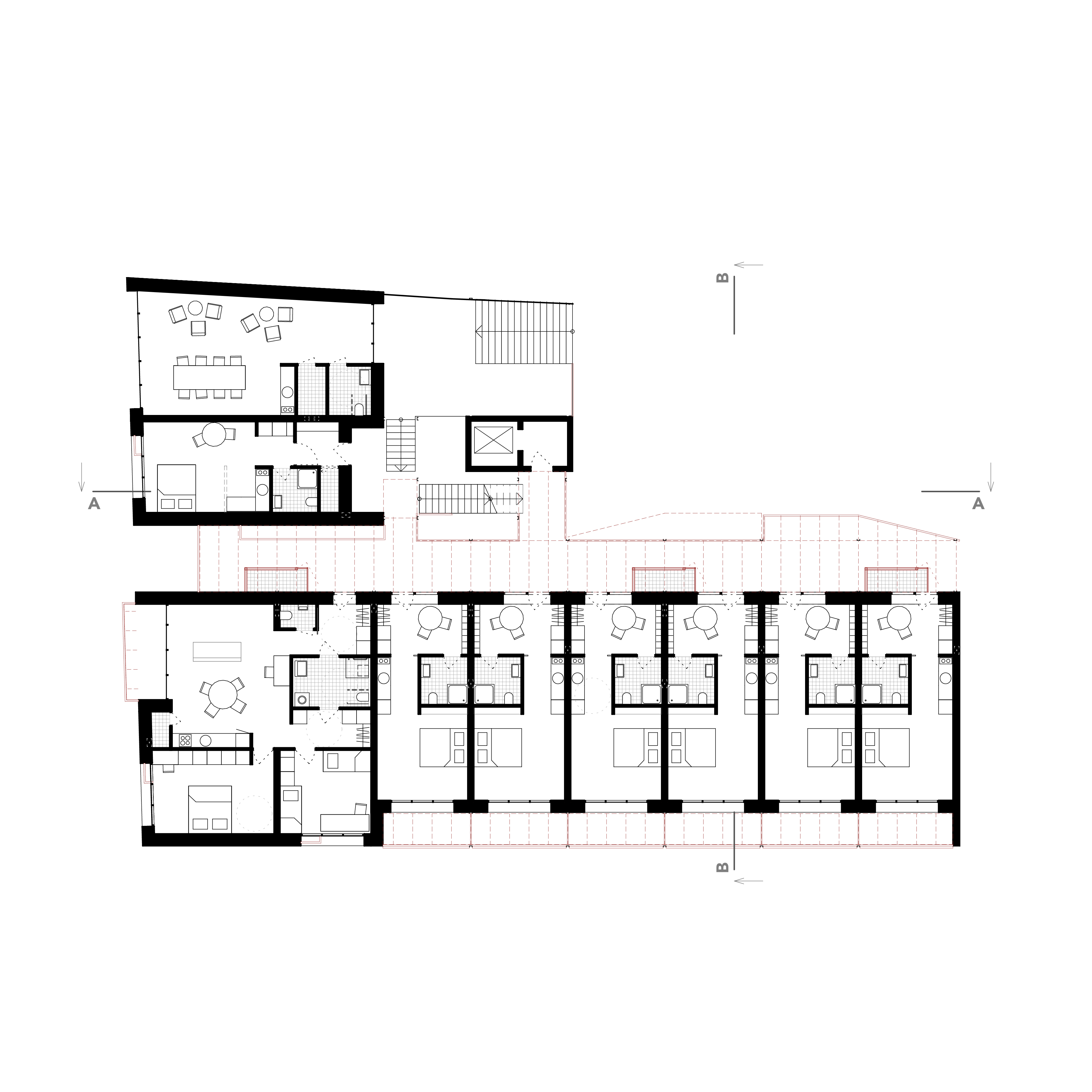
Navrhujeme dům, který vstupuje do budoucí urbanistické situace vzešlé ze studie Bubny - Zátory. Budoucí piazzeta formuje dominantní nároží nového činžovního domu. Ten reaguje na současný i budoucí kontext, a modulová struktura se tak projevuje různorodým hmotovým řešením. Pevný těžký dům je ovinut ocelovými konstrukcemi, které poskytují přidané kvality k minimálním sociálním bytům
Sousedé se potkávají – na otevřených schodech, v prádelně na pavlači, na střeše. Tam mohou sportovat, pěstovat zeleninu, věšet prádlo nebo uspořádat velkou rodinnou oslavu.