projekty
m a t ě j š e b e k a r c h i t e k t i
info

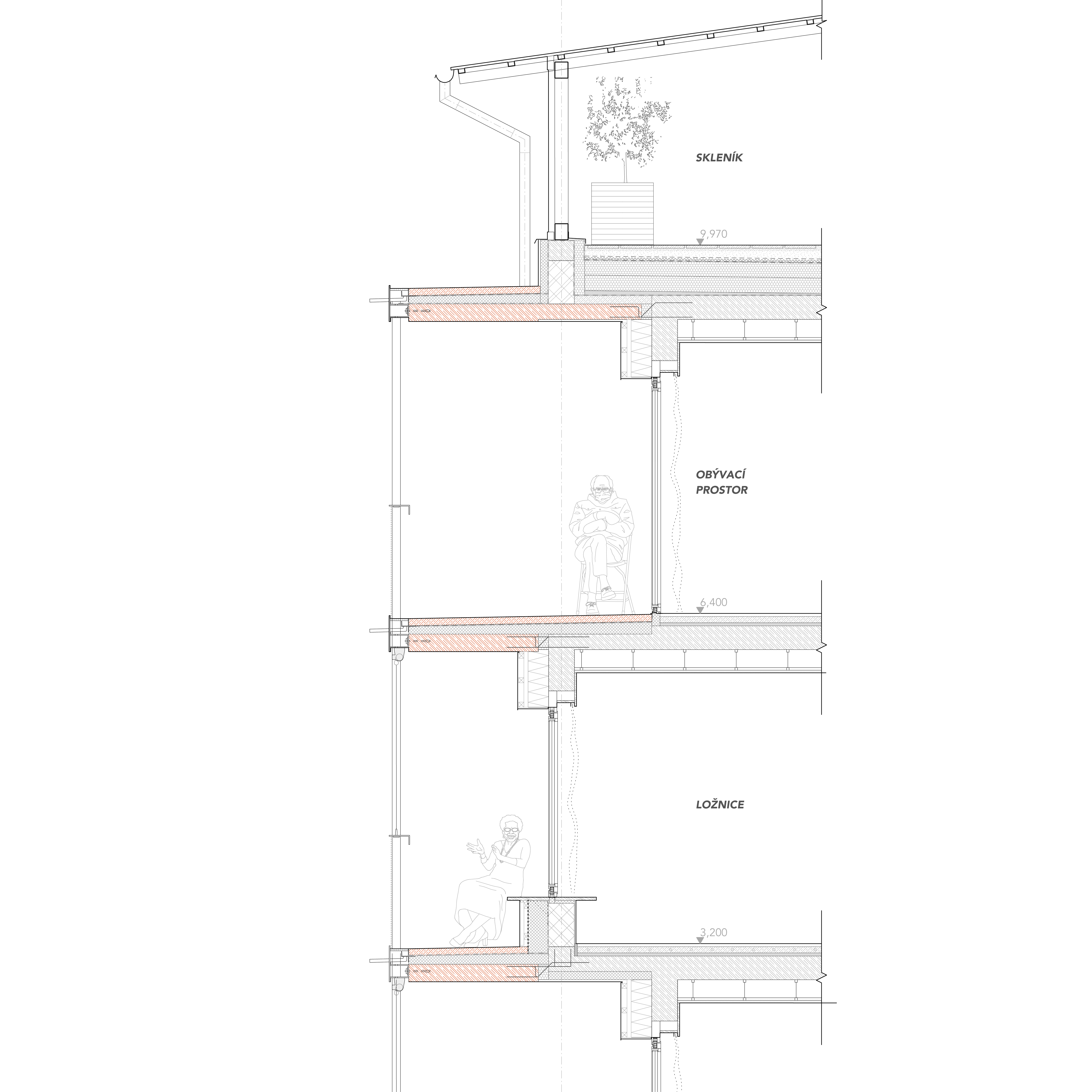
24–11 bytový dům J.K. Tyla

autoři: Matěj Šebek, Matěj Bělohlávek / soutěžní návrh: 2024 / Valašské Meziříčí

Ze zeleného svahu na kraji sídliště vyrůstají 3 živé domy obstoupené vegetací. Různě vysoké hmoty reagují na rozmanitý kontext.

byt – balkon – pavlač – klubovna – schodiště – dvorek

Intenzivní společné bydlení a bohatá škála soukromí. Mnoho příležitostí být venku,
potkávat se – na kus řeči nebo partičku šachů;
pozorovat – dění na ulici nebo krajinu nedalekých vrchů;
tvořit – na střešní zahradě, v dílně nebo v klubu;
odpočinout si – v pohodlí bytu, na slunci i ve stínu dle libosti.