projekty
m a t ě j š e b e k a r c h i t e k t i
info

22–04 řadovka na zbuzanech

autoři: Matěj Šebek / návrh: 2022 realizace: 2025 / Jindřichův Hradec

Původní řadový dům má spoustu nedostatků a výzev. Pitoreskní, a možná i trochu roztomilý, ornament na uliční fasádě byl zbanalizován polystyrenovým zateplením. Je třeba upravit dům tak, aby naplnil požadavky mladé rodiny jak z hlediska současného standardu, tak velikosti.
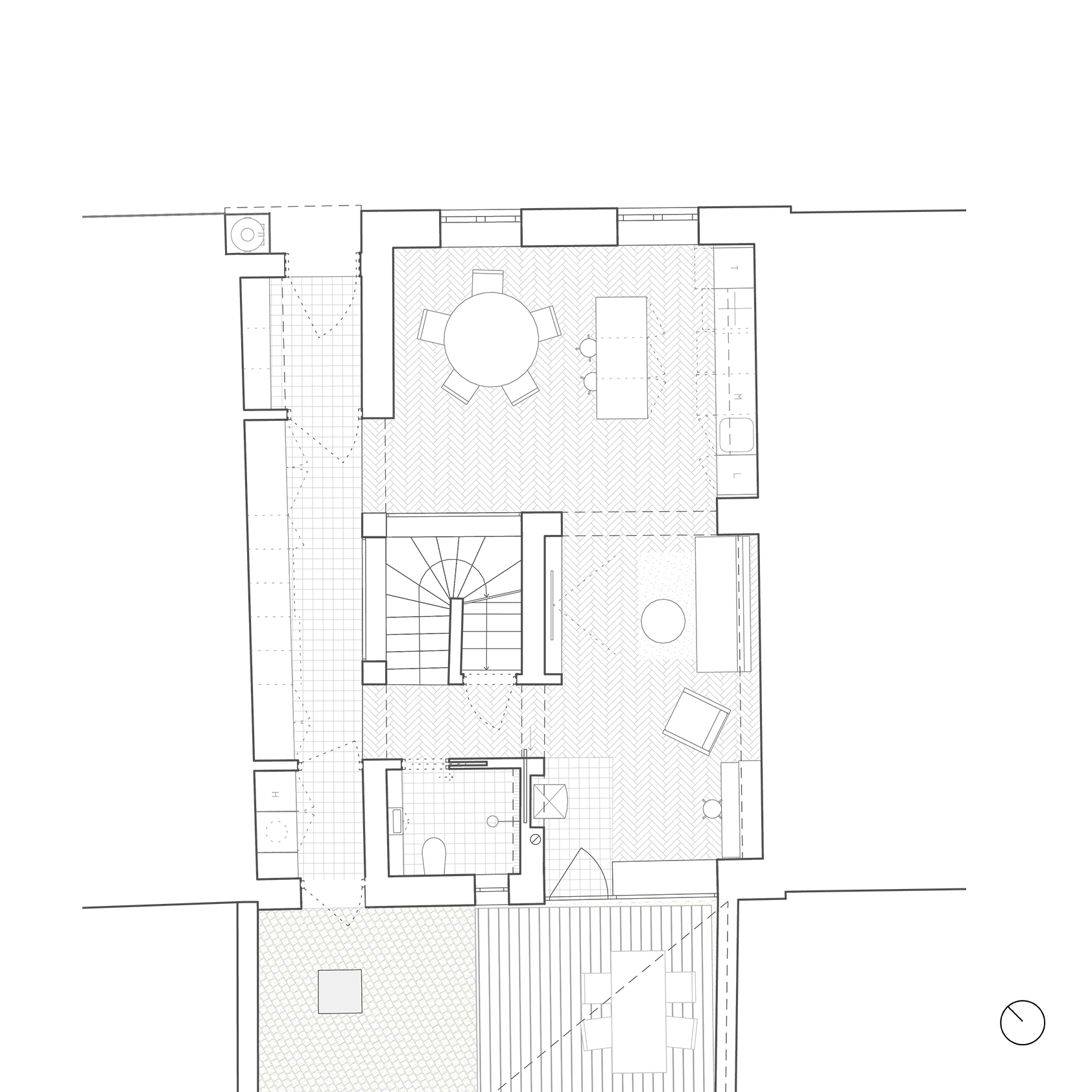
Krytý průjezd představuje rezervu, která umožní vytvořit pohodlné pobytové přízemí pro „denní provoz“ rodiny a v patře 3 malé ložnice pro rodiče a děti. Návrh naplno využívá stávající schodiště. To se stává v přízemí pevným „obíhacím“ bodem, který díky opálovým oknům těsně pod stropem přináší do dispozice denní světlo z podkrovního prostoru. Přízemí se stává jedním spojeným kontinuem, nastavuje v domě velkorysost příčných průhledů, denního světla a dispozičních kvalit – pohodlná kuchyně s jídelním stolem, skladovací chodba navázána na vstup z ulice i ze zahrady, obýváková zóna s kamny a vstupem na dvorek, minimální koupelna pro přespávající návštěvy v oddělitelném obýváku.
Dům téměř nemá zahradu. Mluvíme spíš o dvorku a úzkém zeleném pruhu, který z něj vychází. Abych dokázali měřítko celého domu z pohledu dvorku alespoň částečně zjemnit, novou nástavbu členíme na 2 objemy, které vystupují z původní sedlové střechy. Ze strany ulice je naopak podstatné udržet stávající proporci fasáda – okap – hřeben. Proto do původní střechy nasazujeme průběžný nízký vikýř, který nezastírá svou soudobost a navazuje na novou přístavbu původního průjezdu.
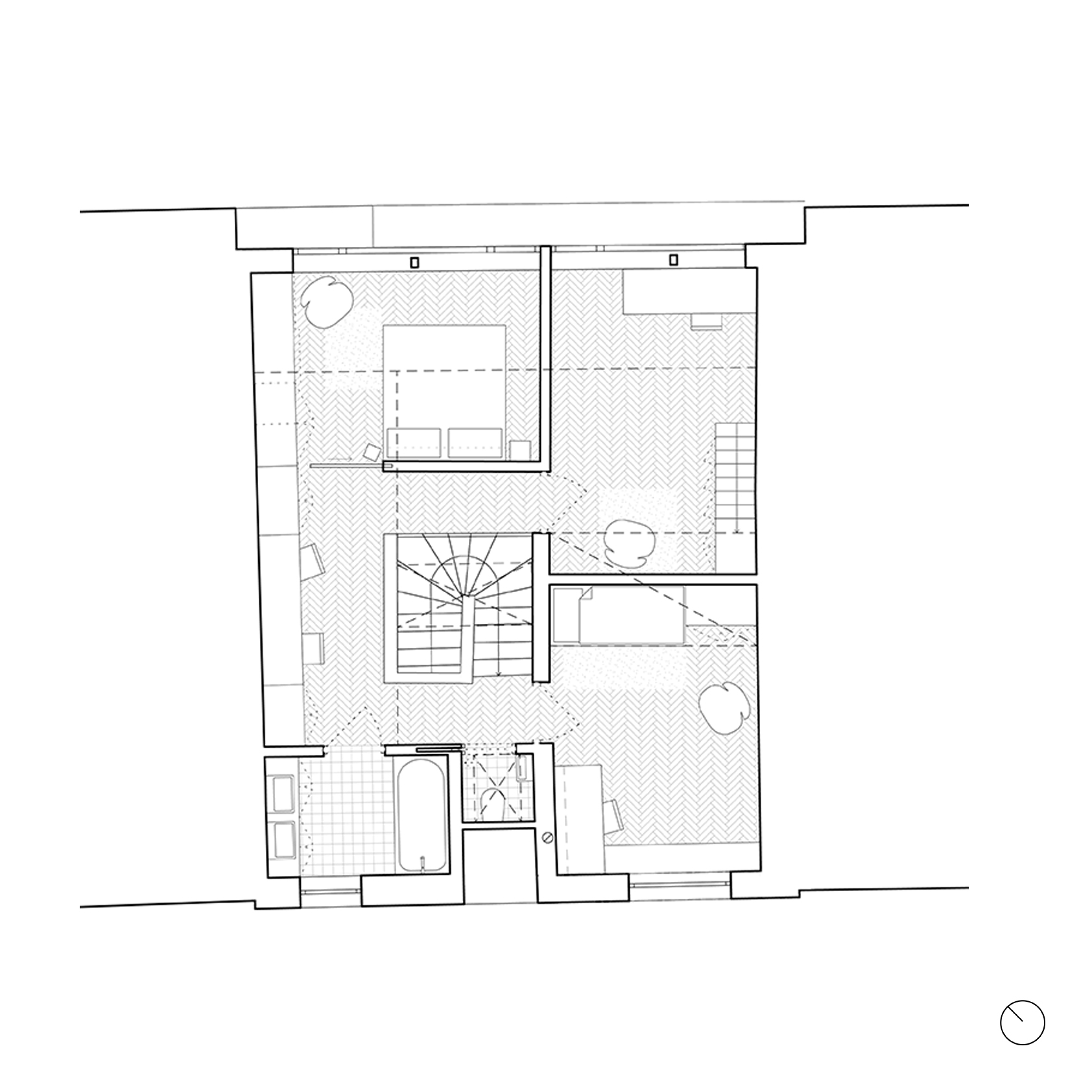
V podkrovním patře bylo nutné uspořit každý centimetr. Původní krokve tak zůstávají v interiéru přiznané, střecha bude zateplena nad nimi. Kolem schodiště se otevírá plošně malá, ale vertikálně převýšená hala s horním osvětlením. Galerie s pracovním stolem přechází v rodičovskou ložnici. Dětské pokoje jsou do sebe prostorově „zaklesnuty“, aby co nejlépe využily převýšené podkroví. Noční ložnicové podkrovní patro má vlastní koupelnu s oddělenou toaletou.
Fásáda do ulice získává novou decentní tvář. Světlý štuk, drobný detail, kvalitní jednoduše dvoukřídlá dřevěná okna. Vstup je od uliční čáry mírně ustoupen v oplechované hmotě přístavby.

stavba: Jihostav s.r.o. Ing. Petr Voves